INTERIOR DESIGN
Reid Building, 24 students
Interior Design at The Glasgow School of Art is a vibrant Studio Community. A place where creative imaginations promote a deeper understanding of the potential and actual value of the spaces we inhabit.
It makes use of its location – a specialist Studio within a specialist Art School – to focus on how the nature, quality and potential of the interior can be developed. The Studio is central to such considerations. It is a place where we discuss, develop and define that which surrounds us. It is a place where we talk, make, draw and show. It is a place where we reveal how the world we hope to inhabit might appear, how it might feel and how it might be.








from Communal

from Communal

from Communal

from Apartment Sections

from Communal


from Design Concept

from Design Concept

from Design Concept

from Interior Design
from 3D Model


from Thrive

from Design Concept

from Interiors
from Thrive

from Interiors








from Archive Rooms

from Study Rooms

from Archive Rooms

from Archive Rooms

from Section


from CITY ISLET-Introduction

from CITY ISLET- Sustainability

from CITY ISLET-Design

from CITY ISLET- Sustainability

from CITY ISLET-Design



from Phases





from Eudaimonia – The Wellness Retreat

from Eudaimonia – The Wellness Retreat

from Eudaimonia – The Wellness Retreat

from Eudaimonia – The Wellness Retreat

from Eudaimonia – The Wellness Retreat


from Residence

from Residence

from Caring Home

from Water Therapy Spa

from Water Therapy Spa


from Site

from Site


from Bespoke Furniture

from Quiet Level -1

from Bespoke Furniture

from Bespoke Furniture

from Erudition Study Space-Ambreen Suleman


from The Design

from The Design

from Site

from The Design

from Site


from Anderston Community Complex

from Anderston Community Complex

from Anderston Community Complex

from Anderston Community Complex

from Anderston Community Complex


from The design

from The design

from The design

from The design

from The design


from Children s Hospital specialized in physiotherapy

from Children s Hospital specialized in physiotherapy

from Children s Hospital specialized in physiotherapy

from Children s Hospital specialized in physiotherapy

from Children s Hospital specialized in physiotherapy


from The Glasgow Printhouse First Floor

from The Glasgow Printhouse Ground Floor

from The Printhouse Cafe

from Brief Project Overview
from Brief Project Overview


from Site

from Plans

from Plans

from Communal spaces

from Site


from Outcome

from Research

from Outcome

from Senses

from Senses


from MUSIC STUDIOS

from FLOORPLANS

from CLUB SPACE

from THE VAULT

from FLOORPLANS


from Site Context

from First Floor

from Ground Floor

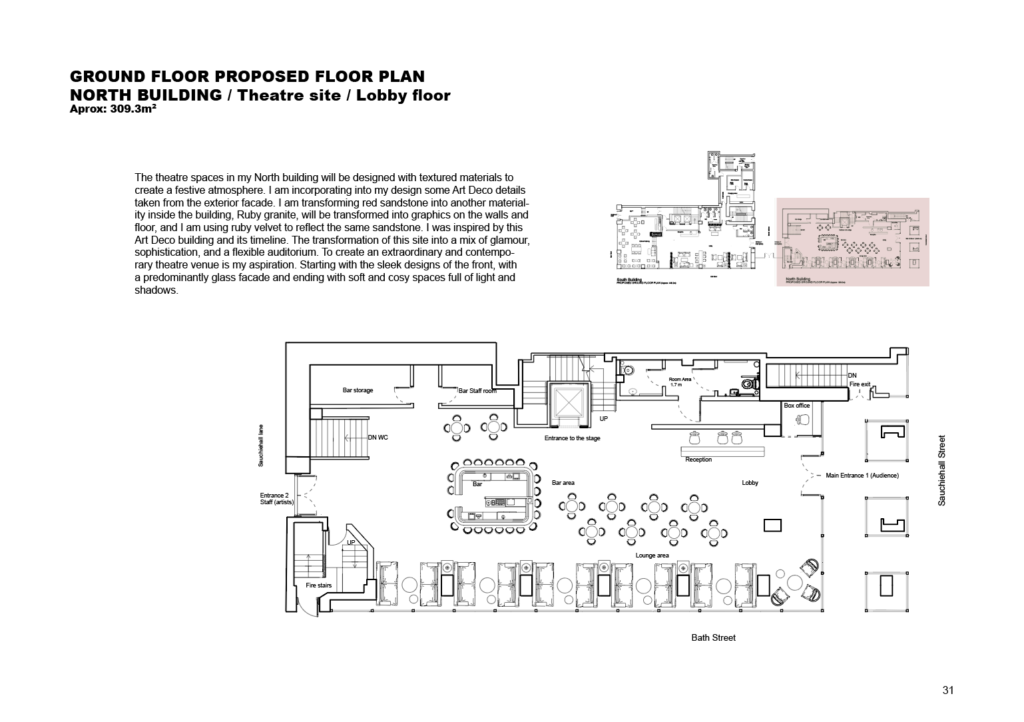
from Ground Floor

from Ground Floor


from The North Rotunda

from The Tunnel

from The North Rotunda

from The North Rotunda

from The South Rotunda


from LORE

from LORE

from LORE

from LORE

from LORE


from Contemporary Music and Dance Venue

from Contemporary Music and Dance Venue

from Contemporary Music and Dance Venue

from Contemporary Music and Dance Venue

from Contemporary Music and Dance Venue